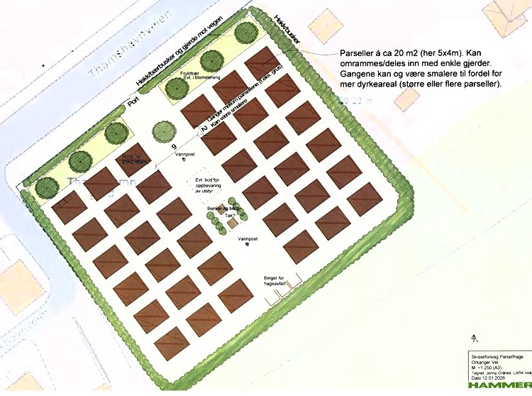
Orkanger Vel jobber videre med planen om parsellhage med urter og grønnsaker på den gamle balløkka kalt Thamshavnbanen og Leeds-banen (bildet). Området ved krysset Thamshavnveien/Bekkfaret har ligget brakk i mange år. Her kan det komme et tilbud om skolehage for Orkanger-skolene. Også barnehager, hagelaget og enkeltpersoner er velkommen. Ta kontakt med velforeninga hvis du er interessert:
Send melding til Orkanger by på Messenger eller bruk e-post styret@orkangervel.no
Orkanger Vel bidrar gjerne med penger til å opparbeide et slikt tilbud på Nerøra hvis interessen er stor nok. Parsellhagfe er sosialt. Mange flytter inn i blokkleiligheter og mister hagen sin.
Vi trenger grønne ildsjeler for å lykkes med et slikt prosjekt. Velforeninga innhenter nå kostnadsoverslag for grunnarbeid, vannpost og lys. Orkanger Vel kontakter også enkelte bedrifter for å lodde stemningen. Og hva synes barnehagene som holder til i nabolaget?

Skissen over omfatter en plan for hele området. I første omgang kan det bli snakk om et mindre areal. Orkanger ungdomsskole har allerede varslet interesse for å bruke noe av området til dyrking. I en parsellhage kan du dyrke fram dine egne grønnsaker, urter og andre vekster. Litt sjølhushold er i tida.
Salvesen & Thams eier løkka. Den er regulert som friområde. Selskapet er positiv til at Orkanger Vel bruker den gamle fotballbanen til nytte for innbyggerne.
Velforeninga har vurdert både ballbinge, padelbane, tennisbane og skøytebane, men lagt slik anleggsutbygging vekk foreløpig. Det skyldes delvis kostnadene og delvis krevende drift.
Om noe av tomta brukes til parsellhage/skolehage, er det mulig å legge til rette også for andre aktiviteter i krysset Thamshavnveien/Bekkfaret.
